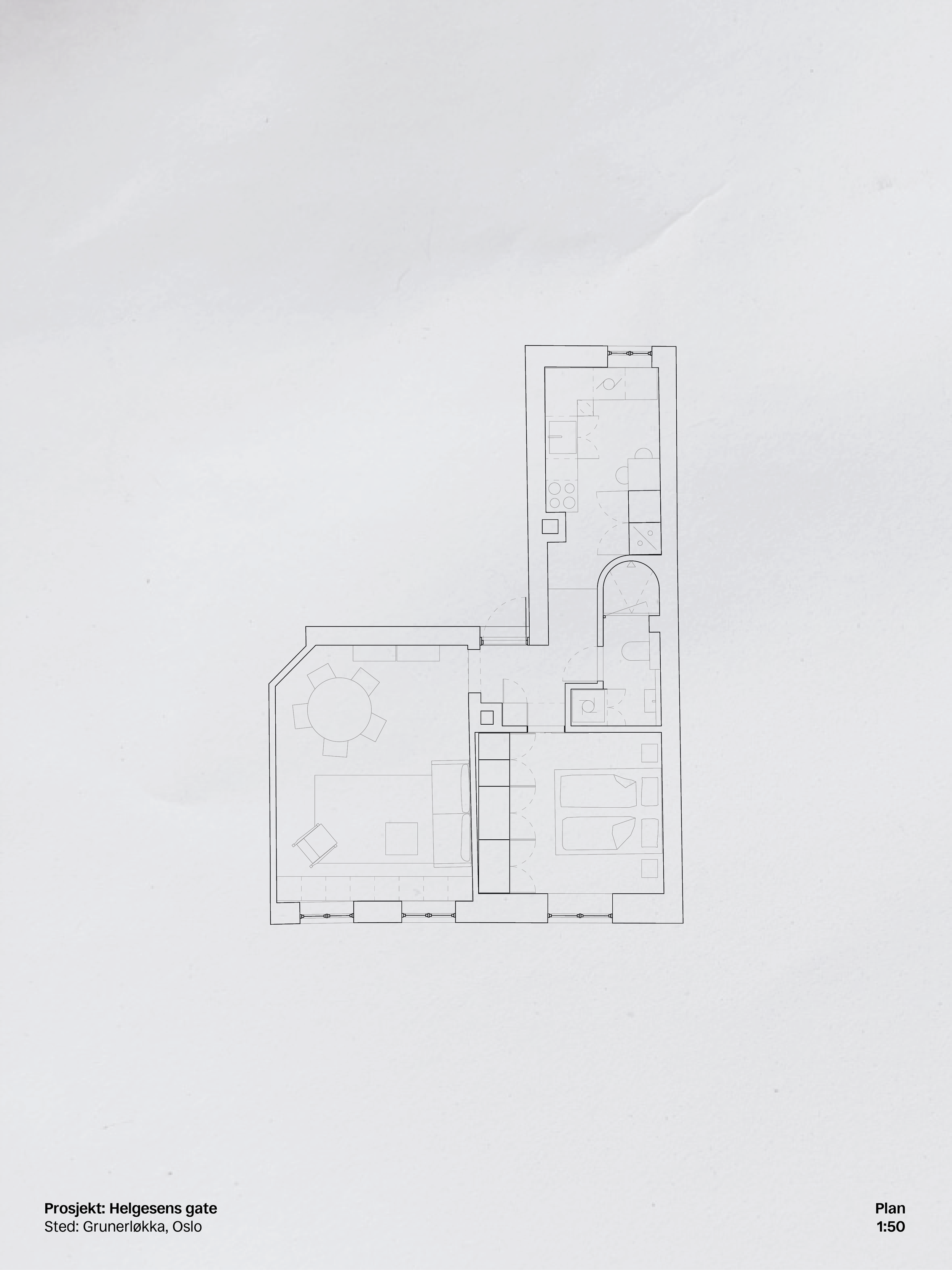
Typology: Apartment renovation
Team: Frida Dahl Obrestad
Location: Sofienberg, Oslo
Status: Ongoing
Full renovation of a two room apartment in Oslo.
Typology: Apartment renovation
Team: Frida Dahl Obrestad
Location: Sofienberg, Oslo
Status: Ongoing
Full renovation of a two room apartment in Oslo.